Laboratorio in vendita

Serravalle Pistoiese, Via Treggiaia
€ 210.000
Prezzo aggiornato
4 locali 4 locali
452 Mq 452 Mq
1 bagno 1 bagno

Laboratorio in vendita

Serravalle Pistoiese, Via Treggiaia

Descrizione annuncio

PONTE DI SERRAVALLE

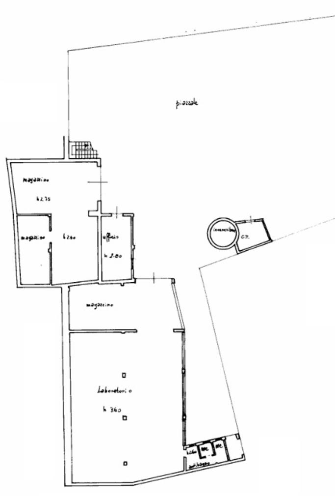
Proponiamo in vendita Laboratorio di circa 454,00 mq con piazzale di 1026,00 mq per poter parcheggiare, caricare e scaricare la merce.

Tramite il piazzale privato accediamo al laboratorio, che si sviluppa tutto su un piano, e il magazzino ci conduce ad un ampio ambiente open space oltre che Wc e anti-Wc.

Poi, proseguendo, possiamo accedere ad altri due vani sempre ad uso Magazzino oltre che ad un ufficio.

La categoria catastale è C3 ad uso Laboratorio.

Nel 2005 sono stati fatti alcuni lavori di ristrutturazione, come ad esempio i pavimenti e l'impianto elettrico.

Fissa un appuntamento per vedere l'immobile contattandoci ai seguenti recapiti:
- Chiama lo 0572951208,
- Inviaci un messaggio WhatsApp al 3299728819,
- Inviaci una mail a pthod,
- Scrivici sui nostri profili social Instagram e Facebook a 'Gruppo Tecnocasa Pieve a Nievole'.

Mostra tutto

Nelle vicinanze

Trasporto pubblico Trasporto pubblico
Serravalle Pistoiese
Serravalle Pistoiese
2,5 Km
Montecatini Alto
Montecatini Alto
2,8 Km
Pr. Lucchese, 60 Fr.
Pr. Lucchese, 60 Fr.
170 m
Pr. Lucchese, 345
Pr. Lucchese, 345
200 m
Scuole Scuole
Scuole
2,4 Km
Farmacia Farmacia
Farmacia della Nievole
2,3 Km
Farmacia
2,8 Km
Negozi Negozi
Panificio 2000
310 m
Alimentari Bonta' Fresca
2,0 Km
Bar Bar
Bar
150 m
Il Bistrot dell'Arco
1,2 Km
Arci Nievole
2,6 Km
Alessandro
2,8 Km
Tiffany
3,0 Km
Ristoranti Ristoranti
Trattoria Da Marino
200 m
Autogrill
590 m
Sciatò
1,1 Km
Ristoranti
1,2 Km
Antico Rio
1,6 Km
Mostra tutto

Caratteristiche

Rif.:
61128232
Piano:
Terra di 3
Totale piani:
3
Condizionamento:
Autonomo
Ascensore:
No
Riscaldamento:
Autonomo
Mostra tutto
Prezzo Prezzo
€ 210.000
Rata mutuo Rata mutuo
€ 990 / mese
Spese annue Spese annue
€ 0
Proponi il tuo prezzoProponi il tuo prezzo

Classe Energetica

D
D
D
D
D
D
D
D
D
EP globale non rinnovabile:
280.64 kW h/m² anno
EP globale rinnovabile:
122.35 kW h/m² anno
EP invernale del fabbricato:
EP estiva del fabbricato:
Anno di costruzione:
1967
Riscaldamento:
Autonomo
Tipo impianto:
Ad aria
Tipo alimentazione:
Aria

Prezzo ridotto di €1 (9%%)

Ti interessa visionare l'immobile?

Fissa un appuntamento  Fissa un appuntamento

Richiedi informazioni

Clicca su Leggi per aprire l'informativa
* Questi campi sono obbligatori

Calcola il tuo mutuo

Semplice e senza impegno
Anticipo

( % )
Mutuo

( % )

pochi semplici passi

inserisci i tuoi dati
Questionario completato
Grazie per aver richiesto un appuntamento senza impegno con un nostro Consulente del Credito e Assicurativo.

Hai inserito correttamente tutti i dati necessari e a breve riceverai una e-mail con un link da convalidare per inviare i tuoi dati.
Affiliato
Tecnostudio Pieve D.I.
Corso Matteotti, 84 51018 Pieve A Nievole (PT)

Il nostro staff


  • Alberto Calandra
    Affiliato

  • Valentina Dami
    Collaboratrice

  • Daiana Fileccia
    Coordinatrice

  • Marco Schena
    Collaboratore
Corso Matteotti, 84 51018 Pieve A Nievole (PT)
Zona: Pieve a Nievole
Mostra su mappa
Orari: Dal lunedì al sabato dalle 09.00 alle 13.00 e dalle 15.30 alle 20.00
Affiliato
Tecnostudio Pieve D.I.
Corso Matteotti, 84 51018 Pieve A Nievole (PT)

2026 Tecnocasa Franchising S.p.A. - P. IVA 08365160152 - Via Monte Bianco 60/A 20089 Rozzano (MI). Ogni agenzia ha un proprio titolare ed è autonoma. Privacy policy | Policy utilizzo | Cookie policy